Znaki "strefa ruchu" na drodze wewnętrznej
Temat pojawił się
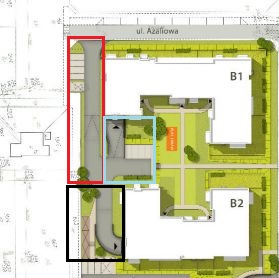
Do 2 wspólnot mieszkaniowych prowadzi zaznaczona na obrazku na czerwono droga (osobna KW, wszyscy współwłaściciele z tych 2 bloków mają w niej udziały) która na działkach dwóch wspólnot przechodzi w drogi wewnętrzną wspólnot i zjazdy do hal garażowych (niebieski i czarny prostokąt).

Mamy poważny problem z parkującymi na wszystkich zaznaczonych częsciach drogi.
Raz że jest problem z wyjazdem z hal garażowych, dwa - w przypadku pożaru w hali straż może nie zdążyć dojechać na miejsce.
Jak powinniśmy rozwiązać temat formalnie aby postawić znaki i zacząć wymagać ich respektowania?
, ale chciałbym dopytać.https://forum.zarzadca.pl/dyskusja/1988/znaki-drogowe-na-drodze-wewnetrznej-wm/ napisał użytkownik:jakiś czas temu
Do 2 wspólnot mieszkaniowych prowadzi zaznaczona na obrazku na czerwono droga (osobna KW, wszyscy współwłaściciele z tych 2 bloków mają w niej udziały) która na działkach dwóch wspólnot przechodzi w drogi wewnętrzną wspólnot i zjazdy do hal garażowych (niebieski i czarny prostokąt).

Mamy poważny problem z parkującymi na wszystkich zaznaczonych częsciach drogi.
Raz że jest problem z wyjazdem z hal garażowych, dwa - w przypadku pożaru w hali straż może nie zdążyć dojechać na miejsce.
Jak powinniśmy rozwiązać temat formalnie aby postawić znaki i zacząć wymagać ich respektowania?
Aby napisać komentarz, musisz się zalogować lub zarejestrować.
Komentarze
W zależności jakich czynności współwłaściciele będą chcieli dokonać obowiązują ich zapisy kodeksu cywilnego:
Art. 199. Do rozporządzania rzeczą wspólną oraz do innych czynności, które przekraczają zakres zwykłego zarządu, potrzebna jest zgoda wszystkich współwłaścicieli. W braku takiej zgody współwłaściciele, których udziały wynoszą co najmniej połowę, mogą żądać rozstrzygnięcia przez sąd, który orzeknie mając na względzie cel zamierzonej czynności oraz interesy wszystkich współwłaścicieli.
Art. 201. Do czynności zwykłego zarządu rzeczą wspólną potrzebna jest zgoda większości współwłaścicieli. W braku takiej zgody każdy ze współwłaścicieli może żądać upoważnienia sądowego do dokonania czynności.
Wydawać by się mogło, że ustanowienie strefy ruchu bądź strefy zamieszkania (ustanowienie takich stref pozwoli na stosowanie przepisów Prawa o ruchu drogowym, czyli mandaty) to czynności zwykłego zarządu, ale brak jest uregulowań w tym zakresie.
Na drogach czarnej i niebieskiej zgodnie z Art. 10 ust. 7 Ustawy z dnia 20 czerwca 1997r. – Prawo o ruchu drogowym Zarządzanie ruchem na drogach wewnętrznych, w tym w strefie ruchu i strefie zamieszkania, należy do podmiotu zarządzającego tymi drogami. czyli danej wspólnoty mieszkaniowej.
Formalnie, żeby postawić znaki należy wykonać projekt organizacji ruchu, postawić znaki, a kwestia respektowania to "droga przez mękę"
Czy zatem potrzebna jest uchwała z >50% głosów "za" wyznaczeniem strefy ruchu?
W sprawie dróg niebieskiej i czarnej zadecyduje każda ze WM (uchwała albo działanie zarządu/cy, w zależności od relacji w danej WM, chociaż ja jestem na stanowisku, że to czynności zwykłego zarządu)
Odnośnie drogi czerwonej żadna ze wspólnot nie może być decydentem, gdyż droga stanowi odrębną nieruchomość gruntową, będącą współwłasnością, a kwestie zarządu współwłasnością zostały uregulowane w Kodeksie cywilnym. Trzeba wybrać zarządzającego, który będzie uprawniony do działania. Sprawa współwłasności z dużą ilością współwłaścicieli jest jedną z bolączek w obecnym stanie prawnym. Musicie w jakiś sposób dojść do porozumienia, ale nie leży to po stronie żadnej z dwóch WM. Praktycznym rozwiązaniem mogłoby być oddanie w zarząd nieruchomości, ale tutaj wymagana jest zgoda 100% współwłaścicieli. Karkołomne...
KubaP po raz kolejny wykazuje nieznajomość tematyki Zarząd 1 czy Zarząd 2? Czego lub kogo? Budynku WM? Samochodów właścicieli? Życia i zdrowia członków WM?
[/quote]
na podstawie wspólnej decyzji , jak się nie dogadają znaków nie postawią , .... chyba, że w nocy....
Narodu , jak naród chce to konstytucja się nie liczy ...